- Home
- Produkte
- Stationäre Schweißrauch- und Staubabsaugungen
- Filterturm
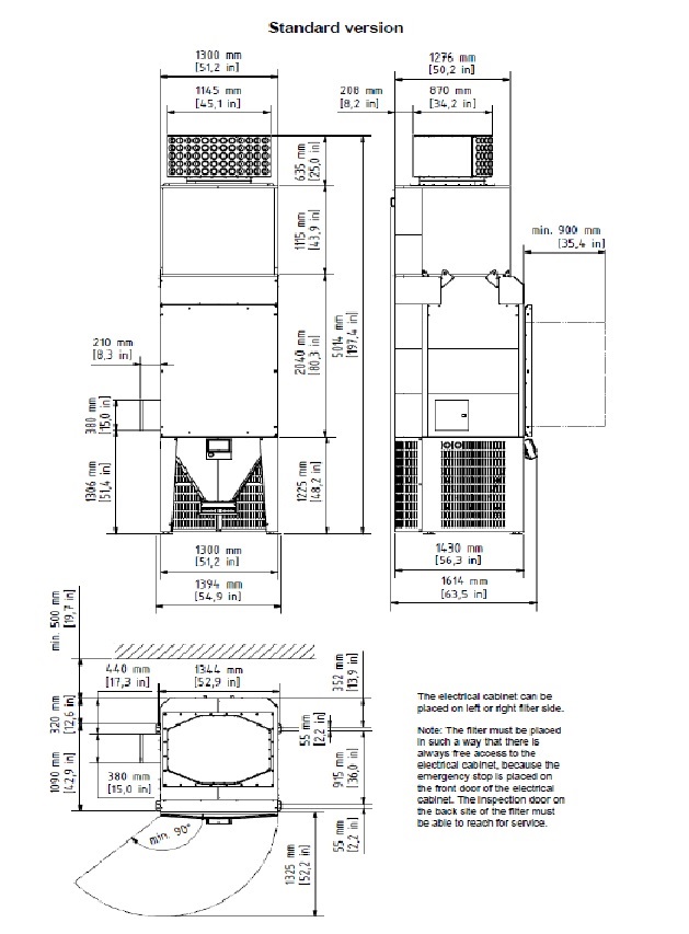
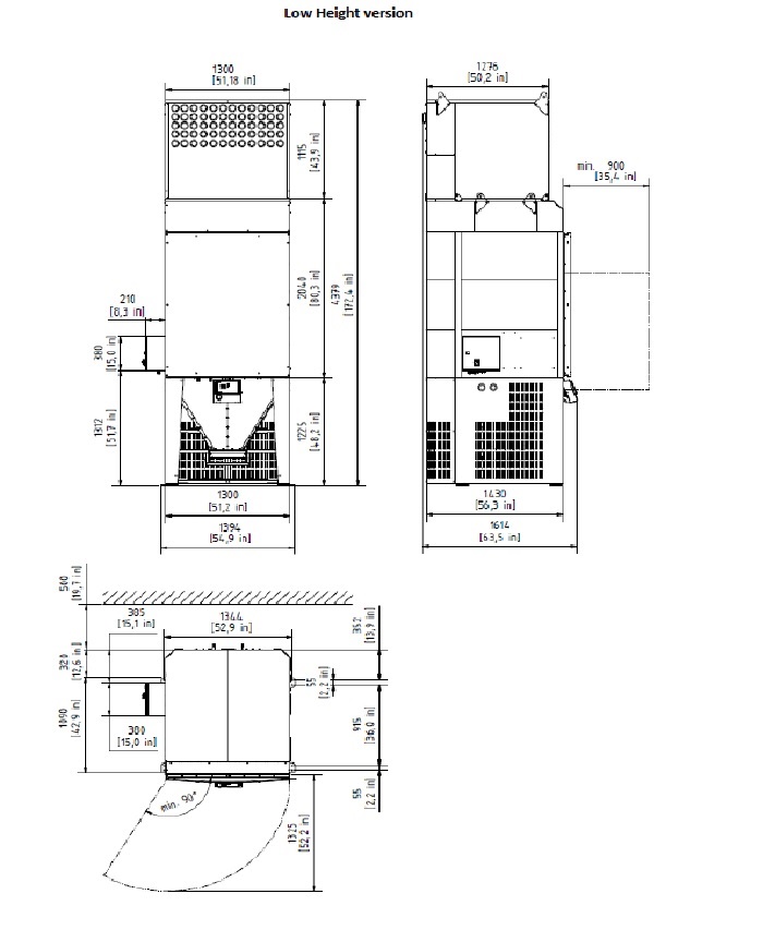
Filterturm Air Purification Tower
Filterturm Air Purification Tower

Kompakter Patronen-Filterturm mit Druckluftabreinigung
60 Düsen mit 35-m-Wurflänge
Verfügbar als W3-geprüfte Einheit nach EN 15012-1
Umluft obenliegend, zur effektiven Auflösung der Staubwolke
Ansaugung unten, wirbelt keinen abgelagerten Staub auf.
Inkl. Steuerung
Der Filterturm MCP-16RC Air Purification Tower ist ein kompaktes Patronenfilter zur Innenaufstellung für dezentrale Luftreinigung.
Verunreinigte Luft wird auf Bodenhöhe in das effiziente Filtergehäuse geführt. Über 60 individuell einstellbare Düsen wird die gereinigte Luft mit hoher Geschwindigkeit am Oberteil des Filters zurück in den Arbeitsbereich zurückgeführt.
Der Filterturm wird in zwei Teilen fertig vorverkabelt geliefert. Die mechanische Montage benötigt nur minimalen Aufwand. Anhand des eingebauten Ventilators wird vor Ort nur Strom-, sowie Druckluftversorgung benötigt um die Installation abzuschließen.
Im MCP-16RC Filterturm befinden sich 16 patentierte Uni-Clean Filterpatronen. Diese werden automatisch durch ein effizientes Druckluftsystem mit niedrigem Energieverbrauch abgereinigt. Die Abreinigung wird durch eine integrierte Steuerung überwacht und aktiviert. Der Filter besteht aus verzinktem 2 mm starken Stahlblech.
Der Filterturm MCP-16RC ist dank folgender Eigenschaften extrem einfach zu warten:
- Frontanordnung der Reinigunsventile, des Drucklufttanks und der Filterpatronen.
- Steuerung und Schaltschrank ist in Bedienerhöhe plaziert.
- Einfach zu leerender Staubbehälter.
Ausblas: Der Ausblas ist oben auf dem Filter platziert und mit 60 Austrittdüsen ausgestattet, welche Luft effizient im Raum verteilen. Der Ausblas selbst und die Düsen lassen sich justieren und an örtliche Bedingungen anpassen.
Dual Schallkabine: Der Ventilator ist komplett in einer Dual Schallkabine eingehaust, die die Geräusche des Motors und des Luftvolumenstromes effektiv reduziert.
Ventilator: F63-R355 (10,0 kW) der Combifab F-Serie für 50 Hz mit hohem Wirkungsgrad (Förderfähig).
Filterpatronen: CA175: flammenhemmendes Zellulose (80% Zellulose, 20% Polyester), geeignet für feine Stäube und Schweißrauch
Einlass: Der Einlass sitzt auf der Filterrückseite und wird von Verkleidungen bedeckt. Eine Rückschlagklappe schließt den Filtereintritt, wenn der Filter ausgeschaltet wird / ist und verhindert .
Staubbehälter: Die Staubbehälter sind zur einfachen Wartung immer mit Rollen bestückt. Folgende Größen stehen zur Verfügung:
- 50 l / 13 gal. mit Rollen
- 37 l / 10 gal. mit Rollen und bin balancing (bei W3)
Loading...
| Applikation | Rauche |
| Kapazität (Max Volumenstrom m3/h) | 10000 |
| Zertifikat | CE |
| Druckluftverbrauch | 22 Nl/Reinigungsimpuls 66 Nl/min bei 20 s Interval 220 Nl/min bei Nachreinigung |
| Truckluftgebrauch | Saubere und trockene Druckluft, 4,5 bar, 24 V DC |
| Volumen Staubbehälter (l) | 50 l mit Rädern oder 37 l mit Rädern und mit Beutelausgleich |
| Filterfläche (m²) | 232 |
| Filterreinigungsmethode | Impulsstrahl |
| Installation | im Gebäude |
| Material | Verzinktes und lackiertes Stahlblech |
| Lautstärke (dB(A)) | 70 (in 1 m Entfernung von der Einheit in 1,6 m Höhe) |
| Betriebstemperatur | -20°C to 70 °C |
| Max. Arbeitsdruck (kPa) | Negativer Druck max. 6 kPa |




