Esnek Filtre EX

Güncel ve gelecekteki gereksinimlerinizi karşılayacak olan en son teknolojiye sahip filtre sistemi
Güncel ve gelecekteki ihtiyaçlarınızı karşılamak için en son teknolojiye sahip filtre sistemi
Patlama önleyici panel ile donatılmıştır.
Anti statik plastik torbalı veya tam otomatik boşaltma aygıtına bağlanmış iletken yığın torbalı standart 70L kutu veya
Designed for ISO 21904 compliance
Flexfilter EX, olası patlamaya karşı aşırı basınca dayanacak şekilde üretilmiştir ve patlama önleyici bir paneli ile donatılmıştır. Bir patlamanın zararlı etkileri aşırı basıncın ve alev yayılımının boşaltma panelinden güvenli bir alana havalandırılmasıyla en aza indirilir. Toz toplayıcı tüm modüler bileşenlerde tamamen topraklanmıştır. Yanıcı tozlar için bütün elektrikli donanımlar EX olarak sınıflandırılmıştır. Toplanan tozun kolayca hareket ettirilmesi için iletken plastik torba kullanımına olanak sağlayan kutu dengeleme kiti ile tamamlanan standart bir toplama kutusundan 70L (18 gal) toplanan toz için veya daha geniş kurulumlar için topraklama kablolularına sahip tam iletken yığın torbalı tam otomatik boş aygıtlar için seçenekler mevcut bulunmaktadır. EX tipi olmayan vakum ünitelerinin kullanılmasına olanak sağlamak için standart olarak bir kontrol filtresi gelmektedir. İzin verilen malzemeler: Çıkarılacak malzemelerin özelliklerini bilmek çok büyük öneme sahiptir. FlexFilter EX, aşağıdaki özelliklere sahip malzemelerin toplandığı bir ekstraksiyon sisteminin bir parçası olarak tasarlanmıştır: - Toz patlama sınıfı: St1 ve St2 - Pmax: ≤10 bar
- MIE (Minimum Tutuşma Enerjisi) > 1 mJ
- MIT (Minimum Tutuşma Sıcaklığı)> 205 ° C
Ürün işaretleme:
FlexFilter EX, 2014/34 / AB Yönergesine göre ATEX sınıflandırılmıştır ve II 3D Ex h IIIC T130ºC Dc
-10ºC≤Ta≤40ºC
Nederman 19.HB01X
olarak işaretlenmiştir.
Loading...
| Application | Dust;Granulate;Grit;Fumes |
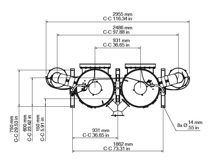
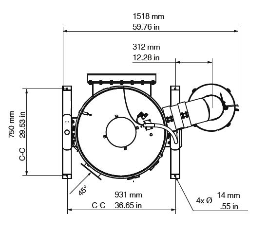
| Kapasite(maks. Hava debisi m3/h) | 1600 (filtre başına) |
| Sertifikalar | CE;EX |
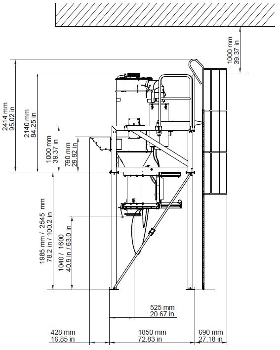
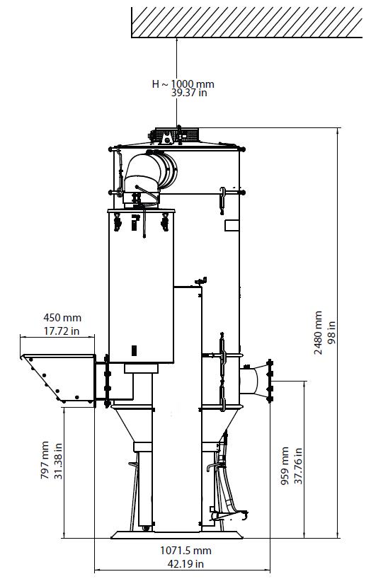
| Çöp kovası (l) | 70 l (yüksek stand için değil) |
| Filitre alanı (m²) | 12 (filtre başına) |
| Filtre temizlik metodu | Reverse air pulse |
| Kurulum | Outdoor |
| Materyal | Saç metal |
| Standart | 2014/34/EC |
| Patlayıcı toz için ideal | true |








