Extracción de óxido de plomo en áreas de hornos
Ciénega de Flores, N.L. – En una industria donde cada gramo cuenta y la eficiencia no puede detenerse, una reconocida empresa global especializada en tecnologías de baterías para vehículos enfrentó un reto crítico: la acumulación de óxido de plomo en su área de hornos estaba comprometiendo la salud del personal, la calidad del aire y la continuidad operativa.
En su planta ubicada en Ciénega de Flores, Nuevo León —parte fundamental del engranaje automotriz mexicano— el proceso de fundición de plomo generaba altas concentraciones de polvos metálicos en zonas con poca ventilación natural. Esto no solo elevaba el riesgo para los trabajadores, sino que forzaba constantes paros para realizar tareas de limpieza.
El reto: extraer el problema sin detener la producción
¿Cómo capturar polvo de óxido de plomo de forma efectiva sin interferir con los hornos en operación, bajo temperaturas elevadas y espacio restringido? Ese fue el desafío al que se enfrentó el equipo técnico a cargo del proyecto.
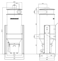
La solución: tecnología de alto vacío para una producción continua y limpia
La respuesta fue un sistema de extracción de alto rendimiento, compuesto por dos unidades Flexfilter High Stand TVFD, un filtro, un ciclón y un poderoso sistema de vacío RBU 1600E, todo gestionado electrónicamente desde un panel digital. Este sistema fue diseñado para operar de forma continua, con especificaciones técnicas robustas:


Valor que va más allá del cumplimiento
Gracias a esta solución, la planta logró:

Lecciones clave: tecnología, comunicación y capacitación
La clave del éxito estuvo en la comunicación constante con el cliente, lo que permitió adaptar el sistema a las verdaderas condiciones del entorno. Además, la selección de equipos adecuados para polvo metálico fino y la capacitación efectiva del personal aseguraron una implementación eficiente y sostenible.
![]() |
![]() |
![]() |
![]() |
Esta historia es un ejemplo claro de cómo la innovación industrial puede alinearse con la salud ocupacional y la eficiencia operativa. Donde antes había polvo y riesgo, hoy hay aire limpio, seguridad y continuidad.
¿Te gustaría destacar este tipo de soluciones en tu planta? Contáctanos y descubre cómo transformar tu entorno industrial en un espacio más limpio y eficiente.
Tenemos una amplia experiencia en varios desafíos de la industria y nuestros expertos están muy bien informados, son serviciales y profesionales. Con nosotros, puede sentirse seguro de que nos ocupamos de usted y de sus necesidades. Siempre es bienvenido a contactarnos con todas sus dudas, desde la pequeña pregunta hasta la más complicada. Le extendemos una cálida bienvenida a Nederman.
Aquí puedes contactarnos