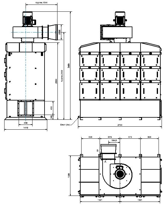
OSF 4x2000 SM

FibreDrain® olierook afzuiging voor continue operatie

Nederman OSF olienevelfilters zijn ontworpen om grote hoeveelheden olienevel en oliemist te filteren tijdens continue processen. De filters zijn ontwikkeld met focus op hoge efficiënte filtratie gecomineerd met lage onderhoudskosten.

Nederman OSF 4x2000 SM heeft standaard een 3 traps filtersysteem waarbij de eerste 2 trappen bestaan uit filtercasettes met Nederman FibreDrain® technologie. Nederman heeft een breed scala aan diverse types voor vele applicaties. De 3e trap van filtering bestaat uit een HEPA filter met klasse H13 met een efficiëntie van 99,95% voor MPPS volgens de EN1822. Alle mudulaire Nederman filters zijn geschikt voor gebruik van een voorfilter. De OSF 4x2000 SM heeft een geïntegreerde ventilator.

  • Drie filter trappen, optioneel voorfilter
  • Meters voor aflezen van drukverlies over elke filter trap
  • Drain: 4 off 1 1/2"
  • Non-vibration fan suspension system

Technische gegevens
Certificeringen CE
Standaard 2009/125/EC
Volume (transport) (m³) 14.4
Geluidsniveau (db(A)) <70 dB(A) @1,5 m vanuit service zijde met optionele ventilatorbehuizing en geluiddemper
Beschermingsklasse IP55
Filter efficiëntie (%) 99,95
Installatie Binnen
Materiaal Plaatstaal, gespoten inwendig en uitwendig
Filter reinigingsmethode Self-Draining
Werkdruk (kPa) Max 4500 Pa
Capaciteit (max. luchtstroom m³ per uur) 8000
Operating Temperature 60° C (geïntegreerde ventilator)
Voltage (V) 400/690
Frequentie (Hz) 50
Aantal fase 3
Aantal filterelementen 24
Amperage (A) 19,5/11,3
Kleur NCS-S 1005 B20G
Gewicht (kg) 2980
Vermogen (kW) 11
Toelichting van technische gegevens Plus 8 optionele filter elementen.
    OSF 4x2000, Inlaatflens 450x450mm links. Drain 4 x 1 ½" Vrouwelijk.

    ArtNo: 12401145

    OSF 4x2000, Inlaatflens 450x450mm rechts. Drain 4 x 1 ½" Vrouwelijk.

    ArtNo: 12401146

Toebehoren bij dit product 15

FibreDrain Filter 1 OSF; 600x600x292 mm
ArtNo: 12400006

FibreDrain Filter 1 OSF; 600x600x292mm

FibreDrain Filter 2 OSF; 600x600x292 mm
ArtNo: 12400007

FibreDrain Filter 2 OSF; 600x600x292mm

HEPA DCM H13 610x610x292 mm
ArtNo: 12400012

Hepa DCM H13 610x610x292 mm

Silencer 90° Ø 500 mm
ArtNo: 12400038

OMF/OSF Silencer 90/Ø500

Optional FibreDrain Pre Filter ORF 610x610x96 mm.
ArtNo: 12400039

FibreDrain Pre Filter ORF 610x610x96 G4

Drain container with piping
ArtNo: 12400764

Drain container with piping

Fan enclosure 2 filters in depth
ArtNo: 12401109

Fan enclosure 2 filters in depth

Inlet adapter OSF 4x2000, OMF 2x4000
ArtNo: 12401161

Inlet adapter OSF 4x2000, OMF 2x4000

Extension structure OSF 4x2000
ArtNo: 12401166

Extension structure OSF 4x2000

Drain pump box, 50 Hz, 10 litre/min at 10m, including controller
ArtNo: 12401330

FibreDrain Pumpbox KTF82-200 / 50Hz

OMF/OSF/MQL mounting system for electrical components
ArtNo: 12401341

OMF/OSF/MQL mounting system for electrical components

OSF/OMF Instruction manual for mounting system for electric components
ArtNo: 12401342

OSF/OMF Instruction manual for mounting system for electric components

Frequentieregelaar met 5 kPa druksensor, 11 kW
ArtNo: 73008918

Frequentieregelaar met 5 kPa druksensor, 11 kW. Beschermingsklasse IP 66.

Frequentieregelaar met 5 kPa druksensor, 15 kW
ArtNo: 73008919

Frequentieregelaar met 5 kPa druksensor, 15 kW. Beschermingsklasse IP 66.