OMF 4000

Sabit çalışma için FibreDrain® yağ duman toplayıcı.

Nederman OMF yağ buharı toplayıcıları kesintisiz çalışma sırasında büyük miktarlarda emülsiyon buharı işlemek üzere tasarlanmıştır. Düşük bakım giderleriyle birlikte yüksek etkinliğe sahip filtreleme işlemlerine odaklanarak geliştirilmişlerdir.

Nederman OMF 4000 standart olarak ilk kademesi Nederman'ın FibreDrain ® teknolojisine sahip filtre kasetlerinden oluşan toplamda 3 adet filtre kademesine sahiptir. Nederman birçok farklı uygulamaya uyum sağlayabilmek için geniş bir yelpazeye sahip farklı filtre çeşitliliğine sahiptir. İkinci kademe, EN1822'ye göre MPPS için %99,95 etkinlik oranına sahip H13 filtre sınıfında bir HEPA filtreden oluşmaktadır. Bütün kule yapılı Nederman OMF üniteleri ön filtre kullanımı için hazırlanmaktadır. OMF 4000 ise üst montajlı bir radyal fana sahiptir.

  •   Üç filtre aşamalı, opsiyonlu ön filtre
  • Her bir filtre kademesinde basınç düşüşlerini okumak için ölçüm aletleri
  •  Uzatma ayakları
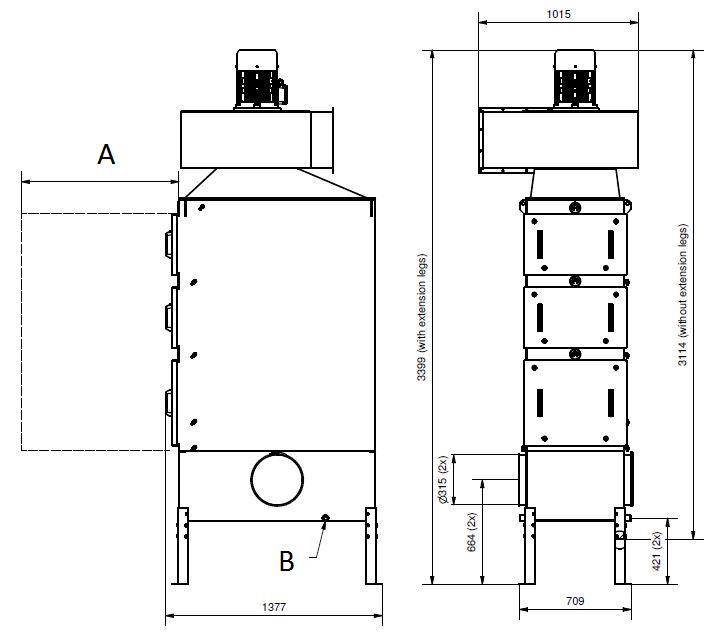
  •   Kavrama halka bağlantılı iki giriş ø 315

Teknik Özellikler
Sertifikalar CE
Standart 2009/125/EC
Miktar(Gemi End) (m³) 5.78
Ses Düzeyi(dB(A)) Servis tarafından susturucu haricinde 1,5 m altında 70 dB(A
Koruma sınıfı IP55
Filtreleme kalitesi (%) 99,95
Kurulum Indoor
Materyal Hem içi hem dışı boyalı sac metal
Çalışma Basınçı (kPa) Maksimum 4000 Pa
Kapasite(maks. Hava debisi m3/h) 4000
Operating Temperature 60 derece C (filtre ile sınırlama)
Kol uzunluğu (m) 0
Güç volt (V) 400/690
Frekans(Hz) 50
Faz adedi 3
Filtre adedi 6
Amper(A) 13 / 7,5
Renk NCS-S 1005 B20G
Noise level (dB(A)) Ext. Silencer ile servis alanından 1.5 metrede 70 dB(A)
Ağırlık (kg) 355
Güç (kW) 7,5
Teknik bilgi onayı Artı 2 Opsiyonlu filtre elemanları. Uzantı ayakları dahil.
    OMF 4000, Giriş 2 x ø 315 mm kelepçe halkası sol veya sağ. Tahliye 2 x 1" dişi

    ArtNo: 12400030

Bu ürünün aksesuarları 13

FibreDrain Filter 1 OMF; 600x600x292 mm
ArtNo: 12400009

FibreDrain Filter 1 OMF; 600x600x292mm

FibreDrain Filter 2 OMF; 600x600x292 mm
ArtNo: 12400010

FibreDrain Filter 2 OMF; 600x600x292mm

HEPA DCM H13 610x610x292 mm
ArtNo: 12400012

Hepa DCM H13 610x610x292 mm

Susturucu 90° Ø 315 mm
ArtNo: 12400016

OMF/OSF Susturucu 90/Ø315

Opsiyonlu fiber tahliye ön filtresi ORF 610x610x96 mm.
ArtNo: 12400039

fiber tahliye ön filtresi ORF 610x610x96 G4

Tahliye pompa kutusu, 50 Hz
ArtNo: 12400054

Tahliye pompa kutusu

Drain container with piping
ArtNo: 12400764

Drain container with piping

Tranzisyon NF 7,5 kW / Ø 315 mm / 1005
ArtNo: 12400988

Tranzisyon NF 7,5 kW / Ø 315 / 1005

Drain pump box, 50 Hz, 10 litre/min at 10m, including controller
ArtNo: 12401330

FibreDrain Pumpbox KTF82-200 / 50Hz

OMF/OSF/MQL mounting system for electrical components
ArtNo: 12401341

OMF/OSF/MQL mounting system for electrical components

OSF/OMF Instruction manual for mounting system for electric components
ArtNo: 12401342

OSF/OMF Instruction manual for mounting system for electric components

Frequency inverter with 5kPa pressure sensor. 7,5kW
ArtNo: 73008917

Frequency inverter with 5kPa pressure sensor. 7,5kW. IP66 enclosure

Frequency inverter with 5kPa pressure sensor. 11kW
ArtNo: 73008918

Frequency inverter with 5kPa pressure sensor. 11kW. IP66 enclosure.