FMCZ cartridge filter

Compact cartridge filter for solving combustible dust problems within a wide range of industries.

The FMC cartridge filter series offers many operational benefits thanks to its compact design and patented UniClean® system. The special design of UniClean® cartridges guarantees consistent and effective cleaning. The filter cartridges are available in two different lengths (type L or A).
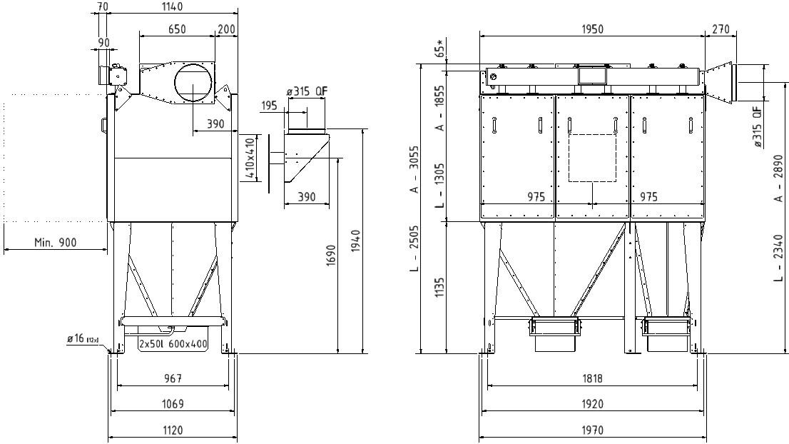
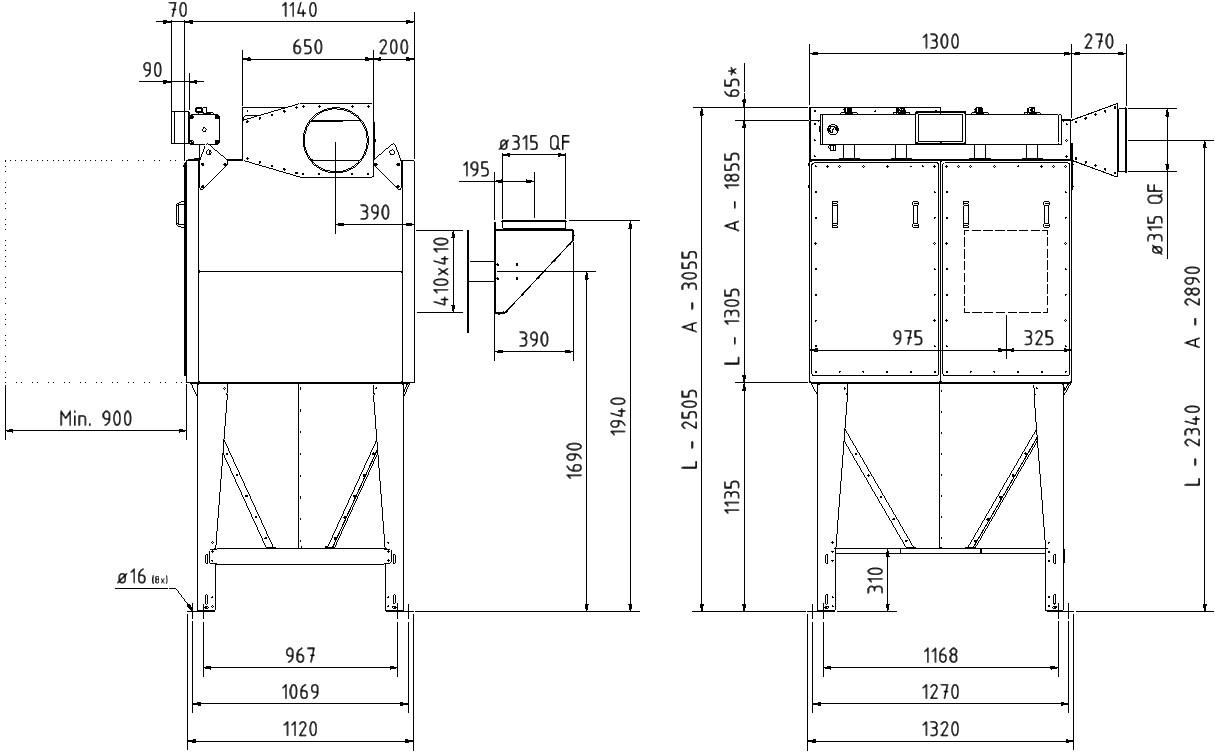
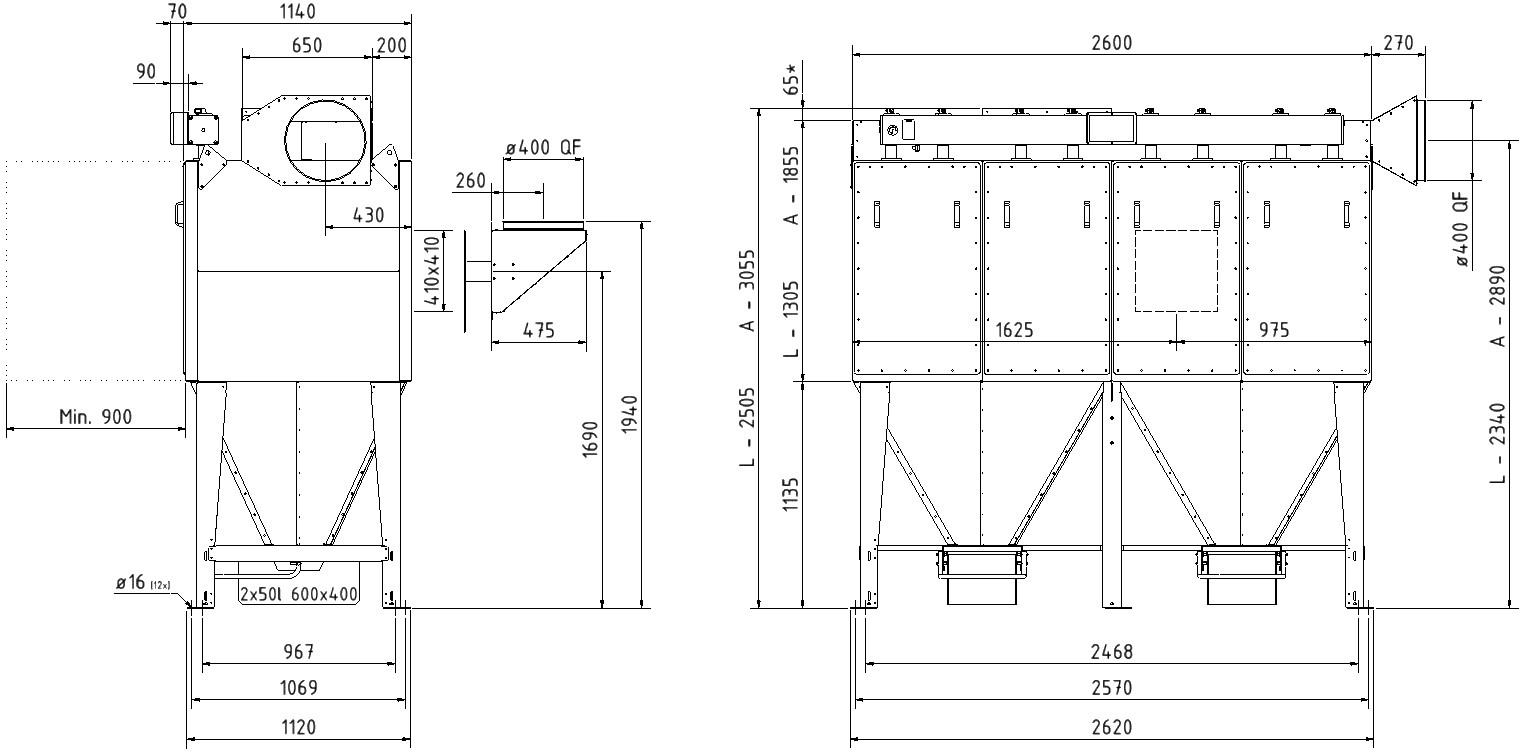
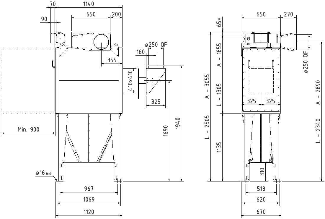
The FMC filters are designed for air volumes between 1 200-21 000 m3/h containing different types of dust. The FMC filters can be fitted with different types of filter cartridges, positioned vertically to prevent dust building up on the filter material.

The filter is designed for an outdoor location and is as standard designed for a top mounted fan.
Independently tested with ATEX compliant features for for combustible dust.

Standard cartridges in polyester CA100: 10 g/m3 max. fine or coarse dust.
Cartridge in cellulose CA175: 1 g/m3 max. cold fumes

Inlet and outlet dimensions 160, 250, 315, 400, 500 or 560 mm.
Air inlet section adapted for a deflector/wear plate.
Primary separation chamber option with perforated screen.
Measurement of differential pressure and control of the cleaning system: DFC-8M, energy supply 230 V – 50 Hz, 110V - 60 Hz.

  • Cartridges are available in a wide variety of materials to suit most applications, whatever the type and quantity of dust
  • Their modular compact design means they can be installed close to the source of dust, thus reducing energy consumption.
  • Their modular compact design means they can be installed close to the source of dust, thus reducing energy consumption.
  • Intelligent ECO-efficient filter controller minimize maintenance and energy costs.
  • Quick release waste bin

Technical data
Certifications CE, EX
Compressed air requirement 6 bar
Compressed air consumption 45 Nl per cleaning pulse
Material Housing in galvanised sheet steel (2mm)
Suitable for combustible dust Yes
Filter cleaning method Pulse jet
Application Fumes, Dust
Working pressure (kPa) -6,0 to 1,5. Operation of the filter with overpressure only allowed if it is a silo top version.
Dustbin volume (l) 50 or 100 or without
Capacity (max airflow m3/h) 21000
Operating Temperature -20 to 70 Deg. C.
Filter type Cartridge
    FMCZ 200-2L

    ArtNo: FMC(Z)200-2Ls

    Number of filter elements
    8
    Filter material
    Polyester (std)
    FMCZ 200-2L

    ArtNo: FMC(Z)200-2Lc

    Number of filter elements
    8
    Filter material
    Cellulose
    FMCZ 200-4L

    ArtNo: FMC(Z)200-4Ls

    Number of filter elements
    16
    Filter material
    Polyester (std)
    FMCZ 200-4L

    ArtNo: FMC(Z)200-4Lc

    Number of filter elements
    16
    Filter material
    Cellulose
    FMCZ 200-6L

    ArtNo: FMC(Z)200-6Ls

    Number of filter elements
    24
    Filter material
    Polyester (std)
    FMCZ 200-6L

    ArtNo: FMC(Z)200-6Lc

    Number of filter elements
    24
    Filter material
    Cellulose
    FMCZ 200-8L

    ArtNo: FMC(Z)200-8Ls

    Number of filter elements
    32
    Filter material
    Polyester (std)
    FMCZ 200-8L

    ArtNo: FMC(Z)200-8Lc

    Number of filter elements
    32
    Filter material
    Cellulose
    FMCZ 200-2A

    ArtNo: FMC(Z)200-2As

    Number of filter elements
    8
    Filter material
    Polyester (std)
    FMCZ 200-2A

    ArtNo: FMC(Z)200-2Ac

    Number of filter elements
    8
    Filter material
    Cellulose
    FMCZ 200-4A

    ArtNo: FMC(Z)200-4As

    Number of filter elements
    16
    Filter material
    Polyester (std)
    FMCZ 200-4A

    ArtNo: FMC(Z)200-4Ac

    Number of filter elements
    16
    Filter material
    Cellulose
    FMCZ 200-6A

    ArtNo: FMC(Z)200-6As

    Number of filter elements
    24
    Filter material
    Polyester (std)
    FMCZ 200-6A

    ArtNo: FMC(Z)200-6Ac

    Number of filter elements
    24
    Filter material
    Cellulose
    FMCZ 200-8A

    ArtNo: FMC(Z)200-8As

    Number of filter elements
    32
    Filter material
    Polyester (std)
    FMCZ 200-8A

    ArtNo: FMC(Z)200-8Ac

    Number of filter elements
    32
    Filter material
    Cellulose

Accessories for this product 27

Single backpack for 8 modules round inlet from the top pos L
ArtNo: 5501169

Single backpack for 8 modules round inlet from the top pos L

Discharge bin 50 l without wheels
ArtNo: 5501273

Discharge bin 50 l without wheels

Discharge bin 50 l with wheels
ArtNo: 5501274

Discharge bin 50 l with wheels

Discharge bin 100 l with wheels
ArtNo: 5501275

Discharge bin 100 l with wheels

Isolation box for FM pressure tank, 2 modules
ArtNo: 5501317

Isolation box for FM pressure tank, 2 modules

Isolation box for FM pressure tank, 4 modules
ArtNo: 5501318

Isolation box for FM pressure tank, 4 modules

Isolation box for FM pressure tank, 6 modules
ArtNo: 5501319

Isolation box for FM pressure tank, 6 modules

Isolation box for FM pressure tank, 6 modules
ArtNo: 5501320

Isolation box for FM pressure tank, 6 modules

Damper type NFUS3
ArtNo: 5501395

Damper type NFUS3

Noise enclosure for FM600 fan
ArtNo: 5501783

Noise enclosure for FM600 fan

DUAL silencer for FM600 series fan with air grille
ArtNo: 5501813

DUAL silencer for FM600 series fan with air grille

DUAL silencer for FM600 series fan with air grille and rain cover
ArtNo: 5501814

DUAL silencer for FM600 series fan with air grille and rain cover

DUAL silencer for FM600 series fan with flanged outlet for duct connection
ArtNo: 5501815

DUAL silencer for FM600 series fan with flanged outlet for duct connection

DUAL silencer for FM6800 series fan with air grille
ArtNo: 5501830

DUAL silencer for FM6800 series fan with air grille

DUAL silencer for FM6800 series fan with air grille and rain cover
ArtNo: 5501832

DUAL silencer for FM6800 series fan with air grille and rain cover

DUAL silencer for FM6800 series fan with flanged outlet for duct connection
ArtNo: 5501833

DUAL silencer for FM6800 series fan with flanged outlet for duct connection

DUAL silencer for FM1000 series fan with air grille
ArtNo: 5501854

DUAL silencer for FM1000 series fan with air grille

DUAL silencer for FM1000 series fan with air grille and rain cover
ArtNo: 5501855

DUAL silencer for FM1000 series fan with air grille and rain cover

DUAL silencer for FM1000 series fan with flanged outlet for duct connection
ArtNo: 5501856

DUAL silencer for FM1000 series fan with flanged outlet for duct connection

Level sensor with beacon, 230V
ArtNo: 5504475

Level sensor with beacon, 230V

Adaptor for bin with bag
ArtNo: 5505033

Adaptor for bin with bag

Adaptor for 50 l bin with bag incl. fitting
ArtNo: 5505034

Adaptor for 50 l bin with bag incl. fitting

Adaptor for 100 l bin with bag incl. Fitting
ArtNo: 5505035

Adaptor for 100 l bin with bag incl. fitting

Hose set for bin balancing
ArtNo: 5505041

Hose set for bin balancing

Single backpack for 4 modules
ArtNo: 5509660

Single backpack for 4 modules

Double backpack for 4 modules
ArtNo: 5509661

Double backpack for 4 modules

Cable gland M40 for levelsensor
ArtNo: 5512245

Cable gland M40 for levelsensor